• contato@inovaproconstrucoes.com.br
  • (41) 4118-0330 | (14) 3454-2103 | (14) 9 9901-2103
service photo

PROJETOS - PROJETO ARQUITETÔNICO


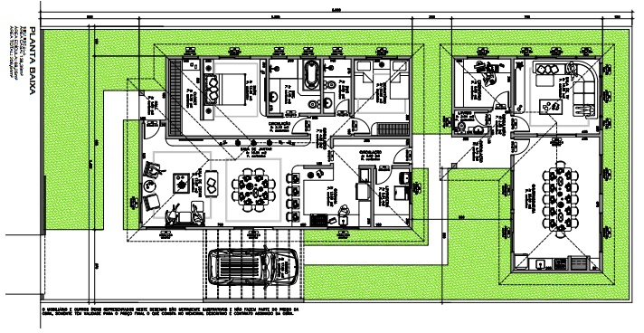
O projeto de arquitetura é o primeiro passo para ter qualidade nos espaços necessários, com o melhor aproveitamento dos recursos naturais de ventilação e iluminação naturais, como também para planejar o orçamento e ter o custo reduzido na obra.

Estudo preliminar

Etapa destinada ao dimensionamento preliminar dos conceitos do projeto arquitetônico ou urbanístico de obras ou serviços a ser realizada por profissional habilitado

Anteprojeto

Etapa destinada à concepção e à representação das informações técnicas iniciais de detalhamento do projeto e de seus elementos, instalações e componentes, a ser realizada por profissional habilitado. O anteprojeto não deve ser utilizado para contratação ou licitação de qualquer obra ou serviço.

Projeto completo

Etapa dedicada à finalização da compatibilização, detalhamento das definições construtivas e à finalização de toda a documentação necessária à construção do objeto de projeto, que envolve o conjunto de desenhos, memoriais, memórias de cálculo,  orçamento detalhado do custo global da obra, fundamentado em quantitativos de serviços e fornecimentos propriamente avaliados e demais informações técnicas advindas das especialidades totalmente compatibilizadas e aprovadas pelo cliente, necessários à completa execução de obra ou serviço de acordo com as normas  pertinentes da Associação Brasileira. O termo projeto executivo é inadequado para se referir ao projeto completo.

Fonte: CAU/BR